等地铁线路共同组成多维立体交通网,畅达全城连接世界,这一次,在亚奥板块,让时间追逐人的足迹。


萧山之眼、奥体之芯,在杭州大湾区、拥江发展战略、亚运会三大利好助力下,未来发展潜力无限。项目紧邻莲花碗体育馆、国际博览中心、亚运村商业:周边坐拥三大城市地标:奥体中心、国际博览城、大莲花碗4大综合体:SKP、奥体印象城、钱江印、钱江世纪城公园商业;市公园:钱江世纪城公园、樱花跑道;

亚奥时代,“奥体-世纪城”板块是未来的杭州“陆家嘴”。明华誉港城位于杭州钱江世纪城核心,占据了这个时代的城市至高点,精研大平层产品,以钱塘江星河畔,闪耀三叶恒星的灵感来源,勾勒出当代共鸣的地标生活,形成杭城轴心、时代的风云人物,献上更具国际感和潮流感的生活范本。
项目自带配套设施十分完善,包括会所、恒温泳池和健身房,业主可以在这些设施中享受高品质的健康生活。同时,三面全景落地玻璃设计可以让居民尽情欣赏城市的美景,感受城市的魅力。


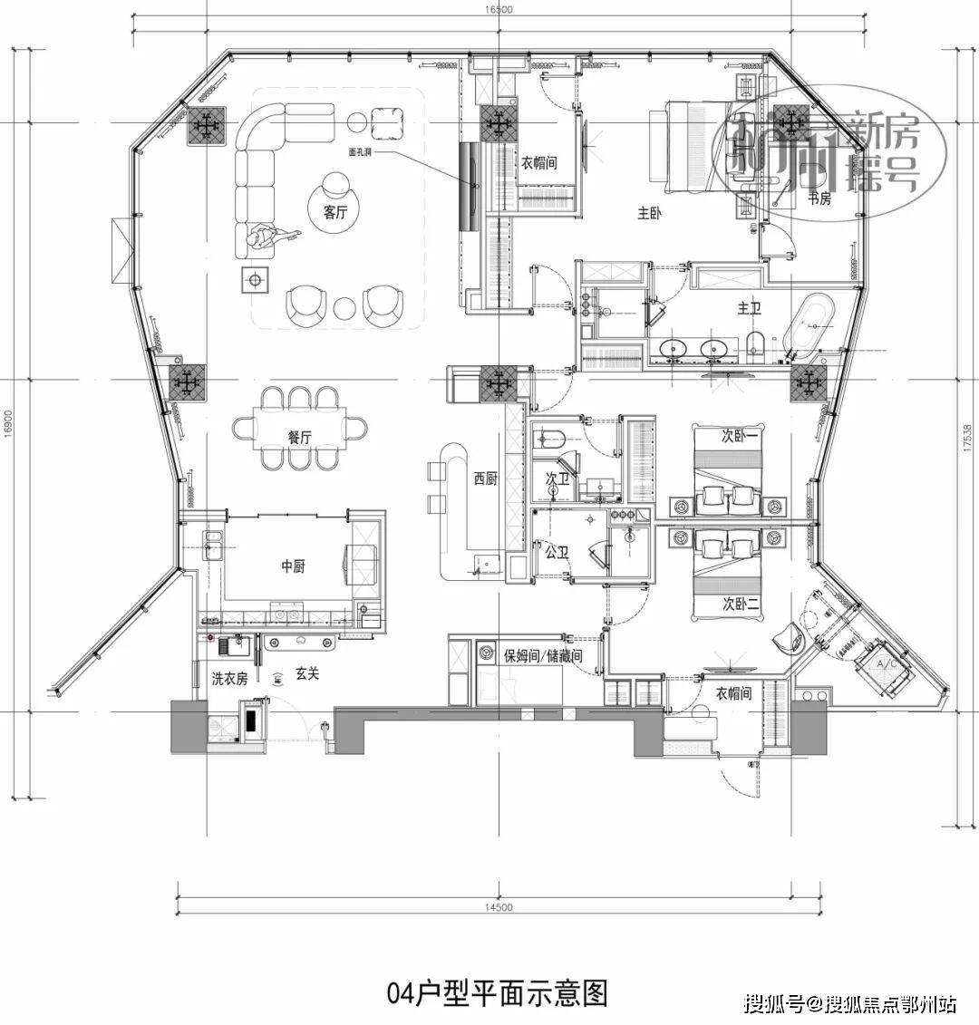
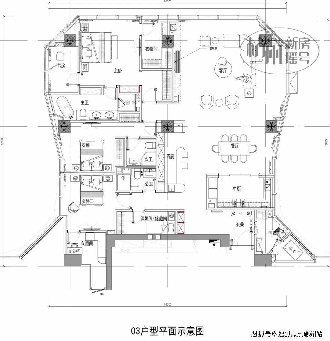
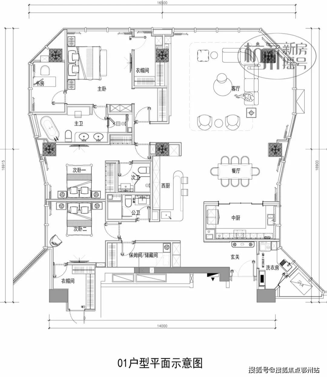
明华誉港城大平层项目是杭州奥体板块的一座高端住宅项目,为业主提供高品质的生活和服务。项目火热销售中,届时将成为杭州房市的一大亮点。

园区采用“围合式”布局,融合“钱塘江”水韵灵感,映衬周围自然生态,配合全冠移植的特色名贵树种,营造出环景畅谈式“艺术公园”。精细规划生活配套,以“私家会所”标准打造。内置室内恒温泳池、私人健身会所等多功能奢华空间。


室内设计大师力作 鼎配云端艺术生活SLD梁志天先生、I.I.D.L郑仕樑先生两大全球TOP级设计大师天团亲自执笔,融汇潮流审美与先进的居住理念,联袂匠作超越时代的美学作品,钜献与世界对语的艺术品味与生活方式。

主卧衣帽间与书房通铺深色实木地板,为整个空间奠定了静谧的色感,营造一种回归纯粹与本真的氛围。次卧往往可以体现更广阔的生活理念,在与整体设计风格和谐一致的基础上跳出主卧的氛围 ,提供一个不一样的情感空间。时光在这里好像变得绵长,缓慢也表现出隐秘而深邃的价值。
所有的东西都是精装的,包括中央空调,户式中央空调等等。对于家庭来讲,这种生活品质将会大大提升他们的生活享受,实际上和独栋别墅是一致的生活享受。主卧衣帽间与书房通铺深色实木地板,为整个空间奠定了静谧的色感,营造一种回归纯粹与本真的氛围。

●寰幕视野:每户270°超大环幕视野,带来IMAX般观景效果,打造空间的光瀑体验;
●阔绰层高:约3.95米奢阔层高,厚载一城荣耀,匹配高净值人士的气度与胸襟。


甄选GAGGENAU、Dornbracht、LAUFEN、kaldewei等全球尖端品牌,品质匠奢样板,荟聚鎏金艺术,领驭时代审美,重构杭州大平层的空间想象。


郑重承诺:此房源信息真实有效,开发商直属全程营销策划,中介勿扰如有问题欢迎来电咨询,来电即可享受买房优惠!
1、本资料为要约邀请,不作为要约或承诺;买卖双方的权利义务以双方签订的《商品房买卖合同》及其补充协议、附件等书面文件为准;相关宣传内容不排除因政府相关规划、规定及出卖人分期规划、未能控制等原因发生变化;出卖人将!不定期对宣传材料进行修改,敬请留意最新资料。
2、图片来源于网络,仅作为推广示意使用;如涉及版权使用,请与我司联系。返回搜狐,查看更多
Copyright © 2025 四川省威廉希尔木业有限公司 版权所有 网站地图